top of page


1/1
/
VULNERABILIDADES URBANAS/RURALES
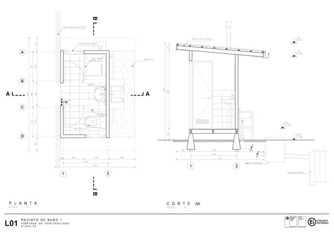
Habilitación primaria: Híbridos de habitabilidad
La consultoría Nuevos Híbridos de Habitabilidad busca levantar, desde el análisis y sistematización de las intervenciones realizadas por el programa de habitabilidad a lo largo de Chile, nuevas respuestas para el mejoramiento de las condiciones de habitabilidad de las diversas familias beneficiarias. De esta forma, se desarrolla un proceso de estandarización de soluciones, abierta y evolutiva complementando los usos baseles con nuevos usos programáticos, avanzando así de manera innovadora.
* Proyecto desarrollado bajo el alero de la iniciativa Ecología Informal, cojunto a Tomás Folch - Paur arquitectos
Nombre de la entidad contratante
FOSIS, Ministerio de Desarrollo Social y Familia
Fecha
2021

bottom of page





